管理物件 賃貸事業用
道元興産ビル -貸事務所・倉庫-
物件No:641
| 賃料 | 990,000円(税込) |
|---|---|
| 敷金 | 270万円 |
| 礼金 | 297万円 |
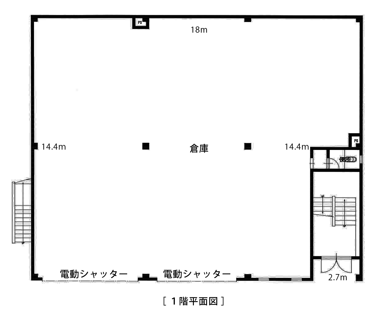
| 面積 | 1階255.96㎡(約77.42坪)2階259.20㎡(約78.40坪) |
| 所在地 | 吹田市川岸町5番20号 |
| 最寄駅 | JR大阪東線 南吹田駅 徒歩7分 |
物件詳細情報
| 建物 | 建物名 | 道元興産ビル | |
|---|---|---|---|
| 構造・規模 | 鉄骨造 ルーフィング葺・2階建て | ||
| 使用部分・面積 | 1階255.96㎡ 2階259.20㎡ 計515.16㎡(155.83坪) | ||
| 間取内訳 | 延べ床面積515.16㎡(約155.83坪) | ||
| 築年月 | 平成3年5月 | 契約期間 | 3年 |
| 管理費等 | 賃料に含む | ||
| 駐車場 | 約12台(賃料に含む) | ||
| 現況 | 入居中 | 入居日 | 2020年10月中旬予定 |
| 本体設備 | 電気、水道、下水、プロパンガス、 電動シャッター、トイレ | ||
| 各戸設備 |  - | ||
| 保険等 | 保証会社加入要(上場会社は不要) | ||
| 備考 | 敷地面積625. 09㎡(約189坪)用途地域は第1種住居、前面道路幅員南側7.7m 東側6m角地、接道間口約20m、防火地域は22条地域 検査済書平成3年7月4日 番号第127号 1階天井高3.5m、2階天井高2.5m |
||
周辺地図
ACCESS
&
LOCATION
株式会社 トリム
大阪府吹田市金田町5番47号
月曜日~金曜日:9:30~19:00
土曜日:9:30~18:00
日曜日・祝日: 定休日
