管理物件 賃貸事業用
南吹田 倉庫・事務所 3階建て敷地約130坪
物件No:5966
| 賃料 | 1,870,000(税込) |
|---|---|
| 敷金 | 保証金6,800,000(総額) |
| 礼金 | 3,740,000 (税込) |
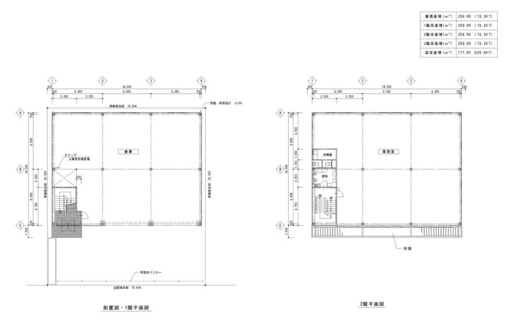
| 面積 | 431.78 ㎡ (130.61 坪) |
| 所在地 | 吹田市南吹田5-16-8 |
| 最寄駅 | JRおおさか東線「南吹田」駅まで徒歩約12分/大阪メトロ御堂筋線「江坂」駅まで徒歩約14分 |
物件詳細情報
| 建物 | 建物名 |  - | |
|---|---|---|---|
| 構造・規模 | 鉄骨造亜鉛メッキ鋼板葺 地上3階建 | ||
| 使用部分・面積 |  - | ||
| 間取内訳 |  - | ||
| 築年月 | 1990年(平成2年)11 月 | 契約期間 |  - |
| 管理費等 | 自主管理 | ||
| 駐車場 | 前面空地有り(賃料に含む) | ||
| 現況 | 入居中 | 入居日 | 2026年2月以降(相談) |
| 本体設備 |  - | ||
| 各戸設備 |  - | ||
| 保険等 |  - | ||
| 備考 | 接道 南側幅員約8.5m(公道) | ||
