管理物件 賃貸事業用
豊中市桜の町3丁目事務所・倉庫
物件No:5959
| 賃料 | 88,000円(税込) |
|---|---|
| 敷金 | 80,000円 |
| 礼金 | 2ヶ月 |
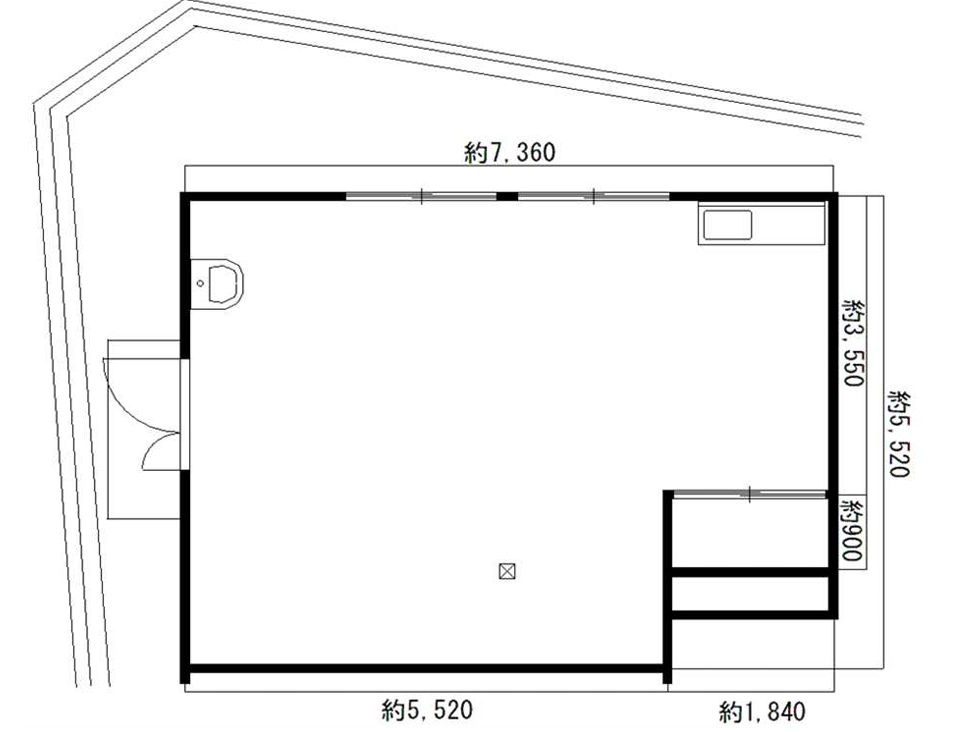
| 面積 | 38㎡ |
| 所在地 | 豊中市桜の町3-6-6 |
| 最寄駅 | 大阪モノレール線 柴原阪大前駅 徒歩8分 |
物件詳細情報
| 建物 | 建物名 |  - | |
|---|---|---|---|
| 構造・規模 | 軽量鉄骨造 | ||
| 使用部分・面積 | 2階建て 1階部分 | ||
| 間取内訳 |  - | ||
| 築年月 | 平成11年(1999年)2月 | 契約期間 |  - |
| 管理費等 | 賃料に含む | ||
| 駐車場 | 無 | ||
| 現況 | 空 | 入居日 |  - |
| 本体設備 | 電気・上水道・下水道・都市ガス・シャッター | ||
| 各戸設備 |  - | ||
| 保険等 | 保証会社:要加入(全保連ほか)/総合保険:三井住友海上との直接契約になります。 | ||
| 備考 | ※パナホーム建築物件です。 ※業種要相談(従前はコインランドリー・倉庫) ※スーパー、ドラッグストア、コンビニ近くにあります。 ※ペット、楽器、飲食不可 ※1年以内の解約は短期違約金(賃料の1ヶ月分)が必要です。 | ||
