管理物件 賃貸事業用
エタニティスペースコスモス -賃貸事業用-
物件No:248
| 賃料 | 47.52万円(税込) |
|---|---|
| 敷金 | 1ヵ月 |
| 礼金 | 3ヵ月 |
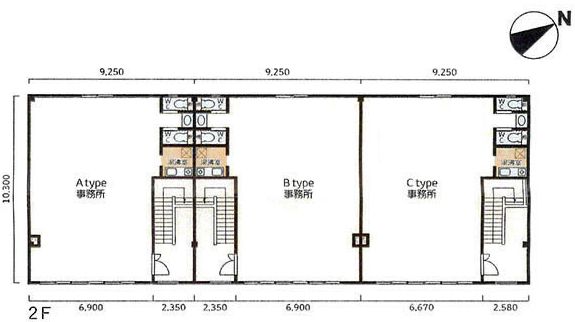
| 面積 | 1階76.77㎡ / 2階95.27㎡ |
| 所在地 | 吹田市豊津町4番4 |
| 最寄駅 | 大阪メトロ御堂筋線 江坂駅 徒歩5分 |
| 担当者のコメント | ■新築フリースペース付事務所 ■平成30年12月完成予定の新築事務所・倉庫です ■江坂まで近く優れた立地です ■各戸駐車場3台完備 |
|---|
物件詳細情報
| 建物 | 建物名 | エタニティスペースコスモス | |
|---|---|---|---|
| 構造・規模 | 鉄骨造 ACL版 2階建 | ||
| 使用部分・面積 | 1階76.77㎡ / 2階95.27㎡ | ||
| 間取内訳 | 画像有り | ||
| 築年月 | 平成30年12月 | 契約期間 | 3年 |
| 管理費等 | 無 | ||
| 駐車場 | 各戸駐車場3台完備 | ||
| 現況 | 空きなし | 入居日 | 平成30年12月 中旬~ |
| 本体設備 |  - | ||
| 各戸設備 | シャッター付 電気・エアコン・上下水道・IH 1口コンロ・小型電気温水器 |
||
| 保険等 | テナント保険:1年10,000円要 | ||
| 備考 | 接道状況:公道6m 建築確認番号:第H30確認建築近確0000861号 |
||
